Hidden at the end of a cul de sac is this massive family home. Ther is so much space for the kids and pets to run free, a great big shed & entertainment area to cater for all your needs.
Inside:
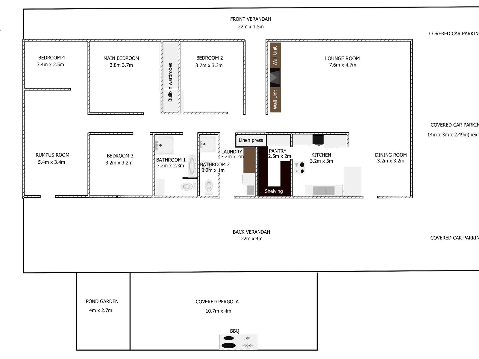
* 4 built in bedrooms
* Open plan air conditioned living area
* Modern kitchen with plenty of cupboard space, gas oven, gas cook top, dishwasher and breakfast bar
* The kitchen is also equipped with a butlers pantry
* Separate rumpus room perfect for a kids play room or hobby room
* Ceiling fans throughout and 5 air conditioners in total
* Modern bathroom with a shower and toilet
* 2nd modern bathroom alongside the laundry
* Separate laundry room
* Security screens and doors throughout
Outside:
* Massive shed approximately 9m x 9m with 3 phase power
* Bonus bathroom inside the shed
* Caravan car port
* Town water plus rainwater tanks
* 2 Dams
* Fenced paddock and fenced house yard
* Smaller storage sheds plus a greenhouse for the plants
* Enormous full length back patio area perfect for family BBQ's and entertaining with an extra undercover area alongside
* Verandah wraps all around the home
* Side carport
If the 3 P's are your priority; Privacy, Position & Price, then prioritise an inspection here today! This property is well established and ready for you to move right in.


































